Bostad - 270-B1-U2-270-002
Änggatan 7 B
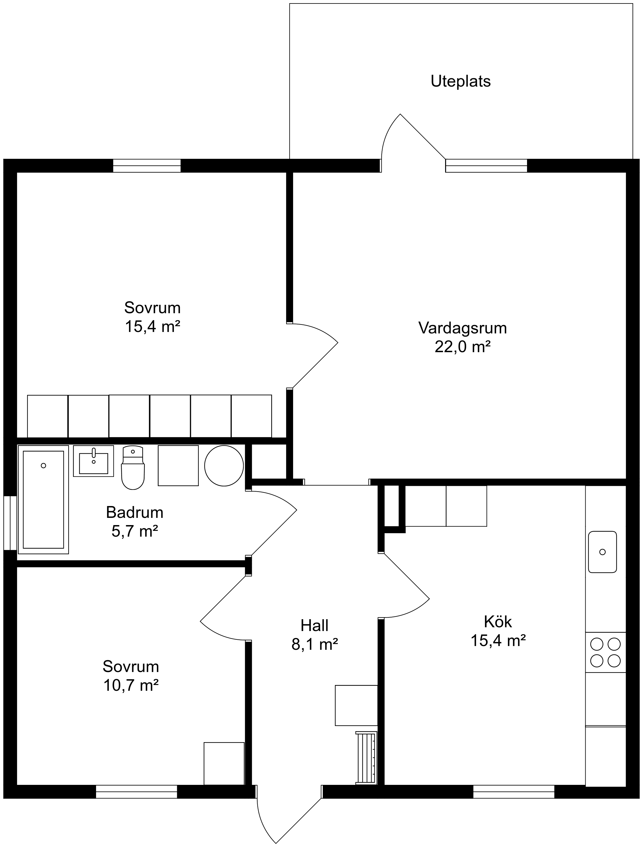
3 rum och kök
- Yta
- 78,8 m2
- Hyra
- 7 978 Kr
- Postadress
- Änggatan 7 B
- 314 51
- Unnaryd
- Ledig fr.o.m.
-
Omgående
- Anmäl senast
- 2025-12-02
Ytterligare information
- Våning
- BV
- Antal rum
- 3
- Hyresobjekttyp
- Standard hyresobjekt Bostad
- Uteplats
- Ja
- Hyresid
- 270-B1-U2-270-002
- Kötyp
- Bostad, kö